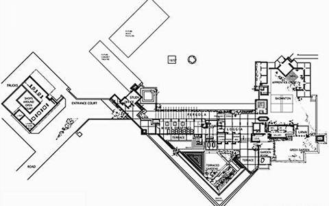
Taliesin West
1937

Arizona